texte

Programme

Rénovation thermique d’une maison de 1974

Lieu

Plurien (22)

Superficie

175 m²

Montant des travaux

340.000 € HT

Maître d'ouvrage

Particulier, privé

Équipe

Ensemble.s | Lotoux Espace Ingenierie | B3E

Missions

Complète

Calendrier

2023 – 2025 | Chantier en cours

Photographies

Rémy Castan

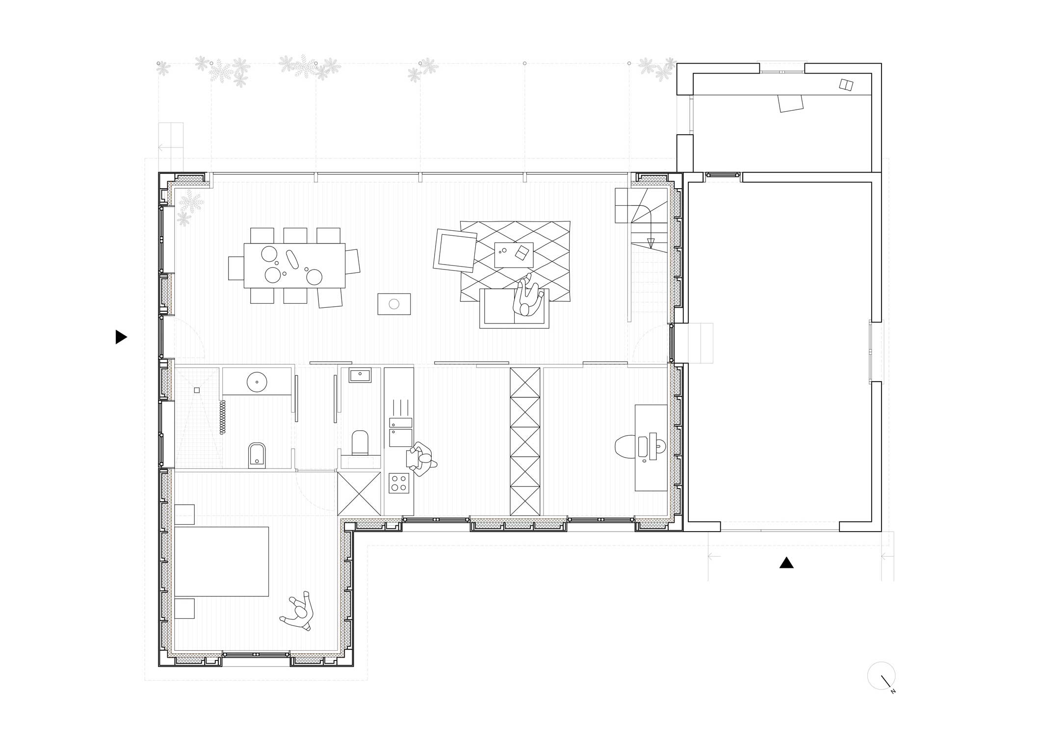
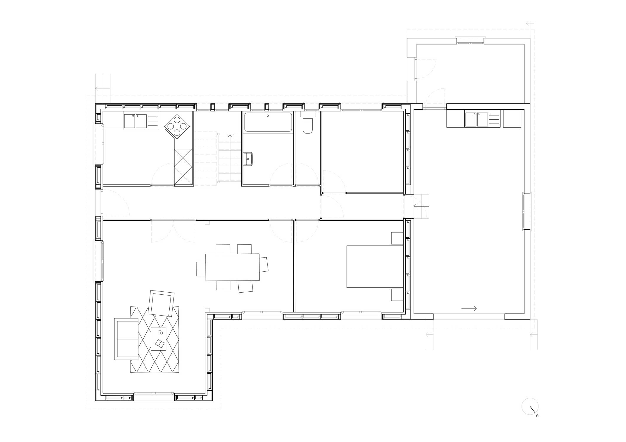
Pavillon choisi sur catalogue, cette construction de 1974 en béton préfabriqué oriente sa façade principale et ses pièces à vivre vers la rue. Issue de l’époque heureuse du modèle pavillonnaire, la maison ne peut répondre en l’état au confort thermique de ses occupants. Les pièces principales sont exposées au Nord-Est, tandis que les pièces techniques aux petites ouvertures profitent de l’exposition Sud-Ouest. Le projet propose aux habitants d’inverser la disposition des espaces intérieurs, et de créer une large ouverture côté jardin qui sera le « radiateur » de la maison. La partie habitable sera entièrement isolée, telle une boîte étanche à l’air. La rénovation répondra aux critères passifs.