texte

Programme

Rénovation thermique, réaménagement intérieur et extension d’une maison néo-bretonne de 1968

Lieu

Plérin (22)

Superficie

190 m² SP existant + 21 m² SP extension

Montant des travaux

NC

Maître d'ouvrage

Particulier, privé

Équipe

Ensemble.s

Missions

Esquisse

Calendrier

2024

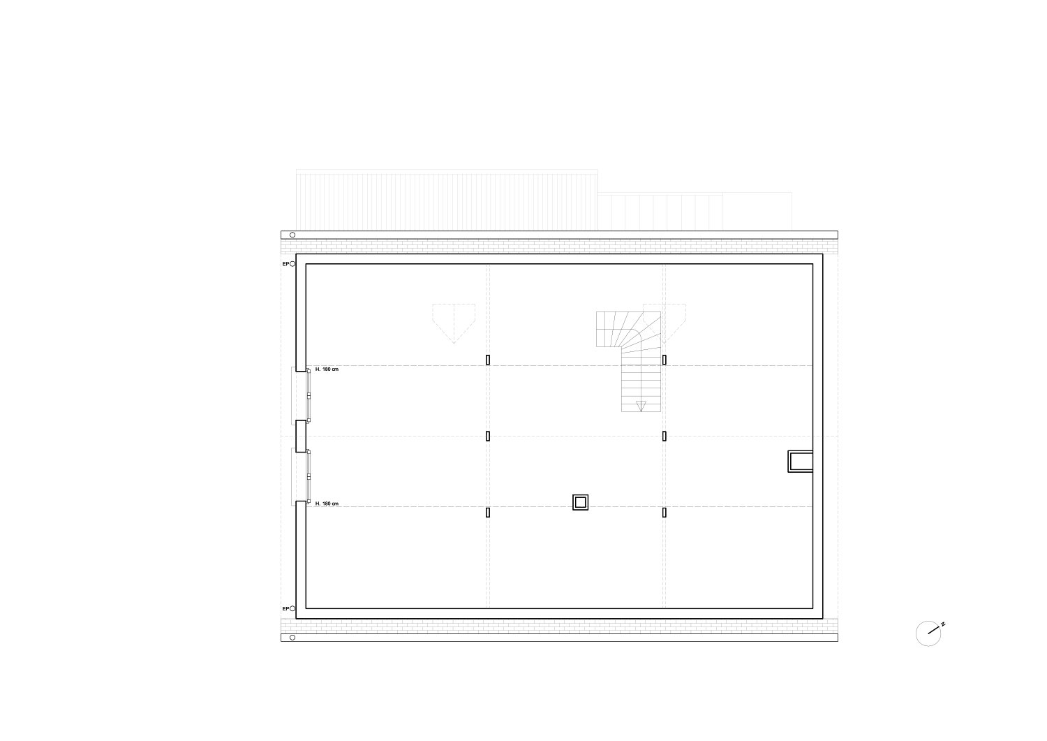
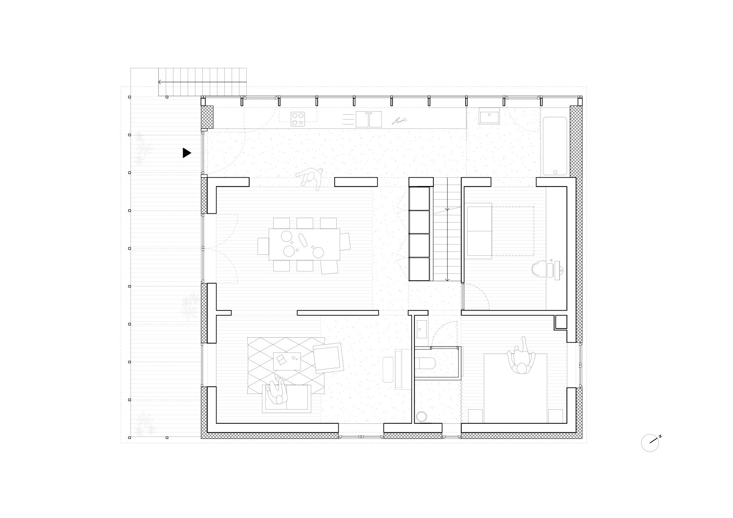
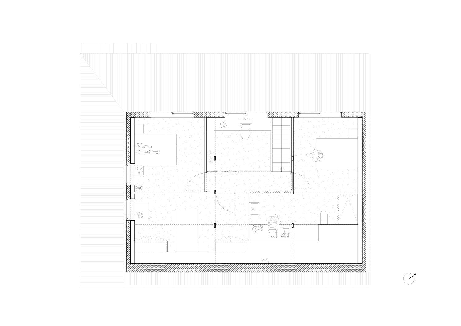
Cette maison néo-bretonne de 1968 se situe sur les hauteurs, à proximité de la mer. Construite selon un plan traditionnel, les espaces sont répartis par niveau : le garage au niveau du jardin, les pièces de vie principales à l’étage, et le grenier dans les combles non aménagés. Cette répartition permet de profiter de vues remarquables sur la mer et le paysage environnant depuis l’espace de vie. Le projet consiste en la rénovation thermique et l’extension de cette maison actuellement trop petite pour accueillir l’ensemble des usages de la famille souhaitant s’y installer. Une extension le long de la façade Ouest, et une terrasse au Sud, permettent de redistribuer les espaces intérieur et extérieur, et de fluidifier les déplacements horizontaux et verticaux. La nouvelle architecture réinterprète la véranda originelle, souvent associée aux constructions de cette époque.