texte

Programme

Réhabilitation et extension du magasin Les intérieurs de Céleste

Lieu

Uzel (22)

Superficie

78 m²

Montant des travaux

NC

Maître d'ouvrage

Les intérieurs de Céleste

Équipe

Ensemble.s

Missions

Complète

Calendrier

2025 – en cours

Photographies

Les intérieurs de Céleste exerce son activité de décoration intérieure en plein cœur d’un bourg patrimonial en proposant un lieu de présentation, d’accueil et de conseil. Le magasin est installé au rez-de-chaussée d’une grande demeure accessible depuis la place aux pots. A l’intérieur chaque espace est meublé et décoré avec soin pour permettre aux clients de se sentir dans un lieu habité.
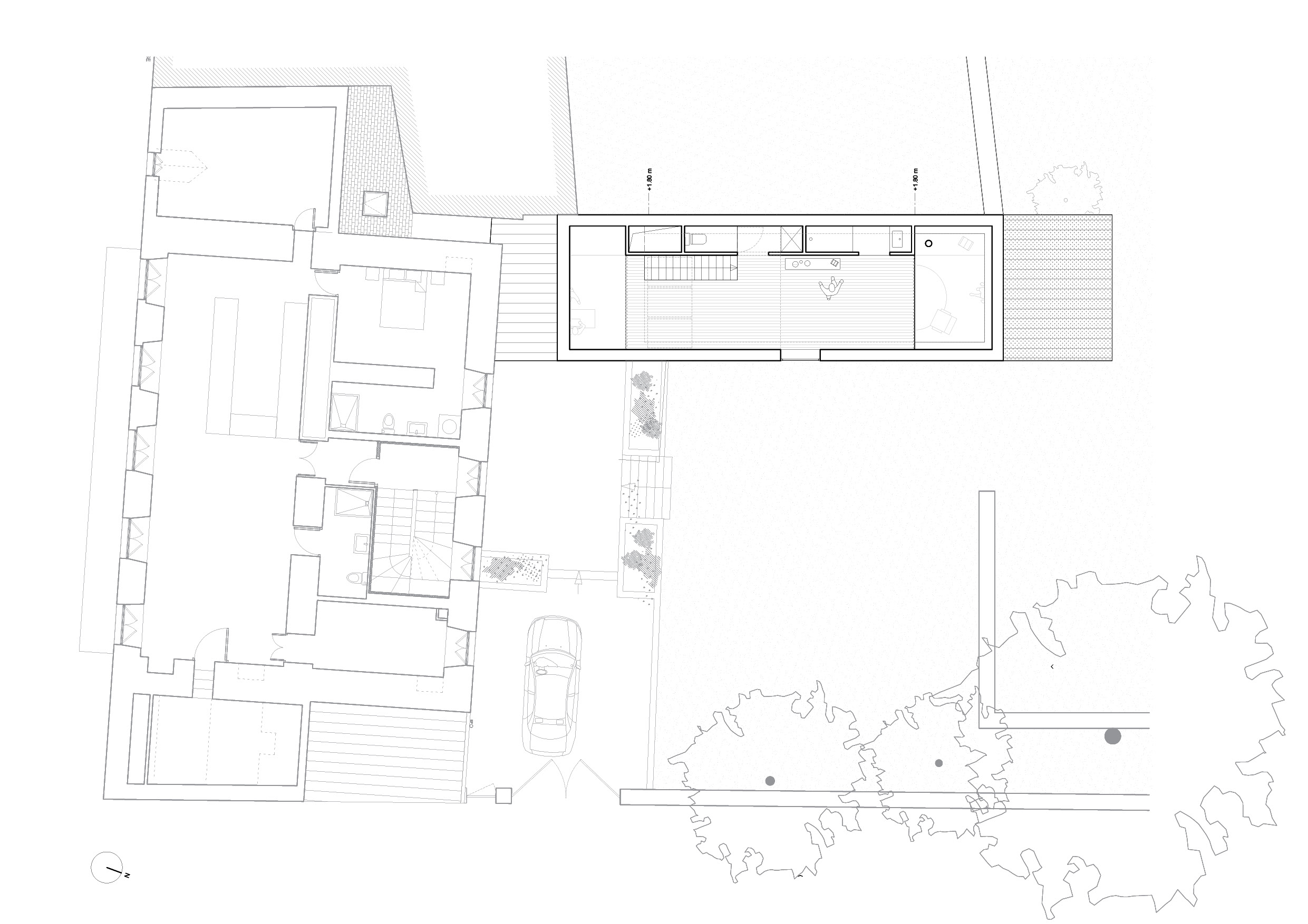
Les intérieurs de Céleste souhaite à présent étendre le magasin côté jardin. Le projet doit permettre de créer un nouvel espace au rez-de-chaussée de l’annexe en pierre, de relier cette dépendance au magasin actuel et de déplacer l’espace bureau réservé au personnel vers l’étage de l’extension.
Le projet propose de surélever la dépendance en pierre avec un volume géométrique pour répondre à l’ensemble des besoins du programme. Vu de l’extérieur, le faîtage est parallèle à celui de la demeure principale. La double pente de toiture reprend les gabarits des architectures annexes, granges ou appentis, que l’on retrouve historiquement dans ces jardins cerclés de murs en pierre. Vu de l’intérieur, ce volume permet de créer un espace confortable à l’étage. Afin de lire la cohérence constructive du projet en ossature bois, l’architecture contemporaine se lit comme un « volume » entier et sobre.