texte

Programme

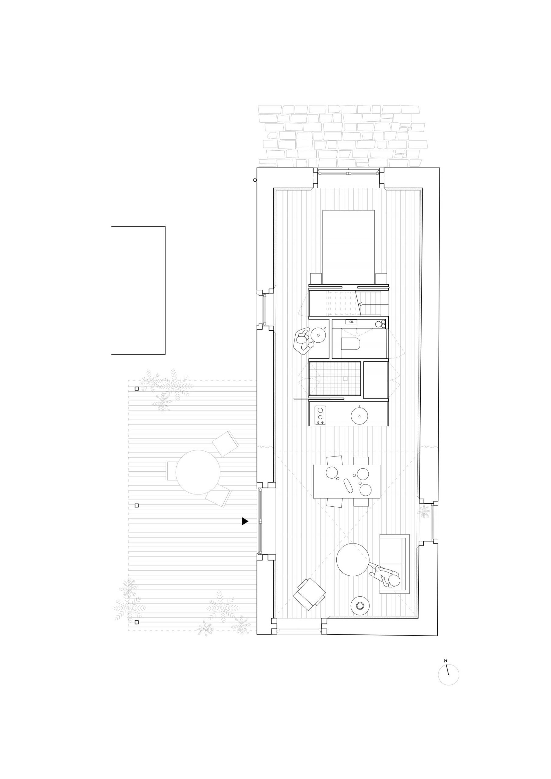
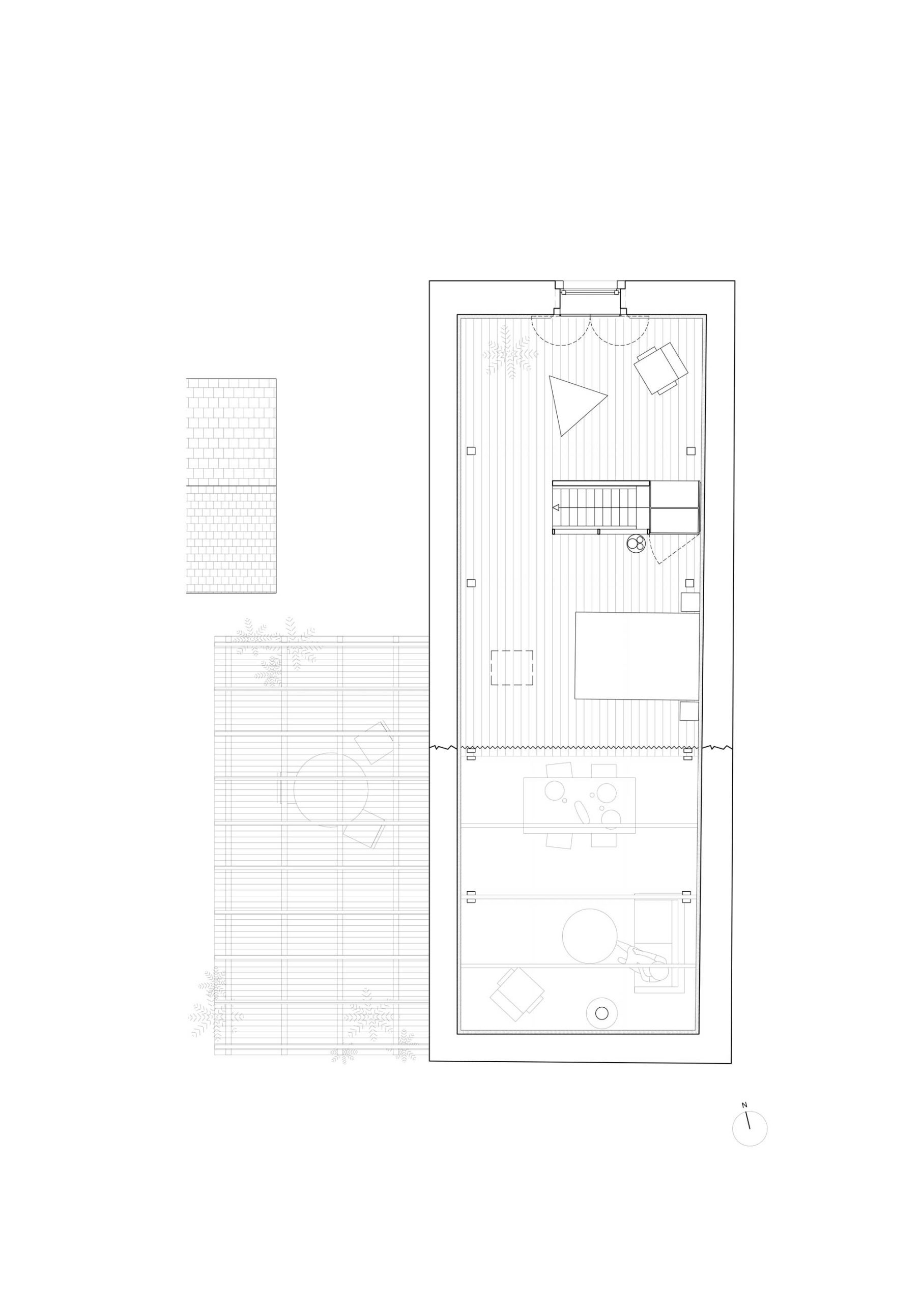
Réhabilitation d’une annexe agricole en bauge en gîte

Lieu

Melesse (35)

Superficie

70 m²

Maître d'ouvrage

Particulier, privé

Équipe de projet

Ensemble.s

Missions

Complète

Calendrier

2021-2022

Photographies

Rémy Castan

Ancienne annexe agricole en bauge, le projet consiste en la réhabilitation de cette bâtisse en gîte. Afin d’allier enjeux économiques, écologiques et patrimoniaux, l’intervention sur le bâti est minimale. À l’extérieur, les façades en bauge sont laissées en l’état, les dimensions des ouvertures existantes sont maintenues. À l’intérieur, l’ensemble des éléments techniques, les pièces d’eau et la cuisine sont regroupés en un bloc technique central. Les murs en terre sont ainsi libérés de toute cloison, et de nouvelles pièces se créent par un jeu d’ouverture-fermeture des portes coulissantes. Les matériaux utilisés sont biosourcés, adéquats au bâti ancien.